1, 铝塑板干挂与石材干挂的区别?

两指之间的施工形式基本相同,只不过因为材料的不同,加工程序而不同。铝塑板”干挂“(只有非幕墙施工才有此称呼)是指使用金属龙骨、埋件固定于墙体后,铝塑板再通过刨槽、折边、加强筋、连接角码固定于龙骨。石材干挂:是指石材经过抛光、磨边、倒角、开槽(或者背栓开孔)、6面防护后,通过挂件(或者背栓),连接到金属龙骨之上的施工。铝塑板的使用芯材,由原来的PVC到PE,再到现在的B级防火及更好的A2级防火等级,已经经历了多次变化,而面板的辊涂氟碳树脂及厚度要求,被幕墙行业严格要求规定。外墙不允许使用聚酯漆,只能是氟碳树脂(含PVDF百分之七十以上)。石材的外墙使用,也被要求厚度不得少于25,防护要求油性的6面防护,挂件逐步要求也由原来的不锈钢挂件而被铝合金挂件替代,背栓的使用取决于业主和设计院(成本问题)。
2, 外墙干挂铝塑板和铝塑板幕墙有什么区别

外墙干挂铝塑板和铝塑板幕墙若从字面上理解其区别如下:一,所指材料不一样,单项铝基板厚度也有所不同。前者是指铝塑板,适合于墙体外立面进行干挂安装的多为4毫米厚的铝塑板,所对应的铝塑板产品结构一般就多种,仅从铝厚这个角度讲,可以是0.21毫米,也可以是0.30或0.40毫米的铝基板,当然也可以遵从国标GB/T17748-2012标准,建筑幕墙专用铝塑板的要求就是铝基板厚度是0.50毫米的。后者是一种用铝塑板装饰之后的墙体外立面,大面积类如幕布。这种幕墙装饰所用的铝塑板一般仅指铝厚0.50毫米的铝塑板。二,所适用的标准不同,外墙干挂铝塑板一般可以参照国家标准22412-2012,也可以参照17748-2012,而铝塑板幕墙所用的铝塑板其执行标准只能是17748-2012.
3, 外墙干挂石材有什么劣势或者缺点

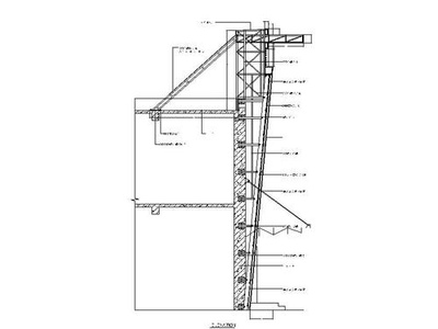
【概念】石材干挂是指通过钢材和铁质、或不锈钢材质挂件再辅以干挂专用胶将石材挂于建筑物外墙。【优点】石材与外墙之间有一定间距,易于保温处理。由于石材具有结构细密、颜色庄重肃穆,质地坚硬、耐磨、耐腐蚀、吸水性小,耐冻性强、挤压强度高等特点,用它作成的幕墙是很好的建筑外围防护结构。石材品种、花色繁多,外观大气,不变色,不易附着灰尘杂物,易于清洁等优点使石材干挂于近些年逐渐流行起来。石材返碱情况少,石材平整度能得到较好的控制。【缺点】石材干挂比湿贴的成本高,占有空间大,减少部分地面使用面积
名词解释
幕墙
幕墙(Curtain Wall),是建筑物的外墙护围,像幕布一样挂上去,故又称为悬挂墙,是现代大型和高层建筑常用的带有装饰效果的轻质墙体。由结构框架与镶嵌板材组成,不承担主体结构载荷与作用的建筑围护结构。今后,由于幕墙工艺与科技的结合,响应全球节能减排的号召,智能型幕墙,如太阳能光伏幕墙、通风道呼吸幕墙、感应风雨智能幕墙等,将展示出建筑的独特魅力。
石材
石材(Stone)作为一种高档建筑装饰材料,早已经成为建筑、装饰、道路、桥梁建设的重要原料之一。市场上常见的石材主要有大理石、花岗岩、水磨石、合成石四种,其中,大理石中又以汉白玉为上品;花岗岩比大理石坚硬;水磨石是以水泥、混凝土等原料锻压而成;合成石是以天然石的碎石为原料,加上粘合剂等经加压、抛光而成。后两者因为是人工制成,所以强度没有天然石材高。
材料
材料是人类用于制造物品、器件、构件、机器或其他产品的那些物质。 材料是物质,但不是所有物质都称为材料。燃料和化学原料、工业化学品、食物和药物,一般都不算作材料,往往称为原料。但这个定义并不严格,如炸药、固体火箭推进剂,一般称之为“含能材料”,因为它属于火炮或火箭的组成部分。材料总是和一定的使用场合相联系,可由一种或若干种物质构成。同一种物质,由于制备方法或加工方法不同,可成为用途迥异的不同类型和性质的材料。 材料是人类赖以生存和发展的物质基础。20世纪70年代人们把信息、材料和能源誉为当代文明的三大支柱。80年代以高技术群为代表的新技术革命,又把新材料、信息技术和生物技术并列为新技术革命的重要标志,就是因为材料与国民经济建设、国防建设和人民生活密切相关。
相关推荐
钢结构外墙做法挂铝板 外墙铝板干挂施工方法 干挂铝塑板施工详细图解 干挂铝塑板的施工方法 中性硅酮耐候胶有甲醛吗 中性硅酮密封胶有甲醛吗? 中性硅酮胶释放甲醛吗 中性硅酮密封胶有甲醛吗? 外墙腰线现浇 请住过腰线层的人回答 阳光房顶用结构胶还是耐候胶 结构胶和耐候胶的区别和使用方法?